Kan vi hjælpe dig med dit bygge-projekt?

Kontakt os på kontoret i København for en uforpligtende snak om dit projekt og hvordan vi kan hjælpe dig med at realisere det.

 
Book et møde
Ring til os
 

Erik Martiny

Arkitekt

Alan Burden

Konstruktions-ingeniør

 
 
 
 
 
 
 
 
 
 
 
 

Arkitekt-hjælp

byggerådgivning

SE Københavns projekter bygger på et tæt samarbejde med bygherren.

Vi sigter altid efter en skræddersyet løsning og derfor skal vores rådgivning også være tilpasset det enkelte behov.

Vi kan stå for indhentning af tilbud hos entreprenøren og tilsyn ved byggeriets udførelse, såvel som de kreative idéer til æstetisk arkitektur.

Da vi har ansat arkitekter og ingeniører med speciale i konstruktioner, statik og bæredygtighed har vi en solid ballast i forhold til at rådgive om stor set alle former for projekter - bla.a. Nybyggeri, Tilbygninger, Ombygninger - samt især vores speciale: Lavemissions træbyggeri.

Læs mere herunder om de enkelte faser i et bygge-projekt og kontakt os gerne for at høre mere om hvordan vi kan tilpasse vores rådgivning netop til dig.

Arkitekt, Arkitektur, Hælp, Rådgivning, Byggerådgivning, Byggeri, Idéoplæg - SE København

idéoplæg - indledende rådgivning

I denne fase lytter vi til dig frem for selv at tale og finder frem til de vigtigste ønsker og behov for dit projekt. Arkitekten laver skitser, evt. af flere idéer, som du kan vælge imellem.

  • Vi laver en plan over rum og deres placering i forhold til hinanden og på grunden (ved nybyggeri).

  • Der laves skitser af arkitekturen og vi tilpasser idéerne så de teknisk og økonomisk er realistiske.

  • Vi fastsætter et overordnet budget og afstemmer det med ønsker for huset og dets størrelse.

  • Vi læser i og afklarer relevante punkter i lokalplanen og bygningsreglementet.

  • Vi planlægger kontakt til eksterne konsulenter - landmåler, geotekniker mv.

Til slut laver vi et byggeprogram som en sammenfatning over behov, hvilke og hvor mange rum huset skal indeholde, husets størrelse og den ønskede arkitektur.

Arkitekt, Arkitektur, Hælp, Rådgivning, Byggerådgivning, Byggeri, Skitseprojekt - SE København

skitseprojekt

I denne fase fastlægger vi mere detaljeret husets form og de materialer der skal bruges. Arkitekten udarbejder detaljerede tegninger og laver visualiseringer, så du kan få en fornemmelse af det færdige hus. Vi gennemgår også husets energiramme og byggeriets klima-aftryk som en vurdering af hvor bæredygtigt det bliver.

Et skitseforslag indeholder typisk:

  • Situationsplan

  • Detaljerede plantegninger.

  • Detaljeret 3D-model af huset og omgivende tærren.

  • Snittegninger der viser rumligheder og konstruktionsprincip.

  • Referencekatalog over materialer og indretning.

  • Detaljerede visualiseringer af interiør og eksteriør.

  • Diagrammer over indeklima-strategi

  • Overordnet LCA-analyse (livs-cyklys-vurdering).

  • Økonomisk overslag for det samlede projekt ud fra en overordnet betragtning.

  • Tidsplan for projektet

Hvor meget huset detaljeres i denne fase varierer dog fra projekt til projekt.

Arkitekt, Arkitektur, Hælp, Rådgivning, Byggerådgivning, Byggeri, Myndighedsprojekt, Byggetilladelse - SE København

MYNDIGHEDSPROJEKT

I denne fase indhentes byggetilladelse (evt. landzonetilladelse) for byggeprojektet.

Vi samler alt det materiale der skal bruges og står også gerne for selve ansøgningsprocessen med løbende kontakt til kommunen.

Det er vigtig at ansøgningen er så fyldestgørende som muligt hvilket fremskynder sagsbehandlingen betragteligt. Her kan du drage stor fordel af SE Københavns viden om hvad kommunerne efterspørger og hvordan byggeriet skal dokumenteres.

Arkitekt, Arkitektur, Hælp, Rådgivning, Byggerådgivning, Byggeri, Udbudsprojekt - SE København

udbudsprojekt

I denne fase detaljerer vi projektet yderligere med henblik på at indhente tilbud fra den rette entreprenør. I den forbindelse laver vores ingeniører alle de vigtige statiske beregninger som sikrer at bygningen bliver stående i mange år. Vi får også endeligt styr på teknik og ventilation og hvordan det skal føres rundt i huset.

Konstruktionsprincipperne og overfladematerialer besluttes mere endeligt og vi udfører tegningsmateriale der understøtter beslutningerne. Vi beskriver byggeriet og holder styr på at det holder sig indenfor de økonomiske rammer.

Dette materiale kan derpå sendes ud til entreprenører som kan give tilbud på opgaven.

Hvordan et udbud ser ud kan variere meget fra den ene projekt til andet. Dette aftaler vi nærmere med dig i løbet af processen.

Arkitekt, Arkitektur, Hælp, Rådgivning, Byggerådgivning, Byggeri, Hovedprojekt, Udførelse - SE København

Hovedprojekt & Udførelse

I denne fase planlægges byggeprocessen i detaljer og der tages stilling til alt det resterende der ikke er belsuttet i tidligere faser. Vi udarbejder alle de detaljetegninger og beskrivelser som entreprenøren skal bruge til at bygge huset præcist som du ønsker det.

Her besluttes de absolut sidste detaljer i byggeriet, fra gulv til loft og farven på væggen, hvis dette ikke er besluttet tidligere.

Det aftales med entreprenøren præcist hvilke tegninger det er nødvendigt at udarbejde, og vi sørger for at forskellige elementer til byggeriet bestilles efter korrekte specifikationer.

Når alt er på plads skal huset bygges og her kan vi bidrage med løbende tilsyn og kvalitetssikring på byggepladsen. Ved aflevering af byggeriet sikrer vi igen at alt er som det skal være og om der evt. skal laves noget om før du får det færdige hus at flytte ind i.

 
 

Skitser fra idéoplæg til et enfamiliehus i Farum, Danmark:

 

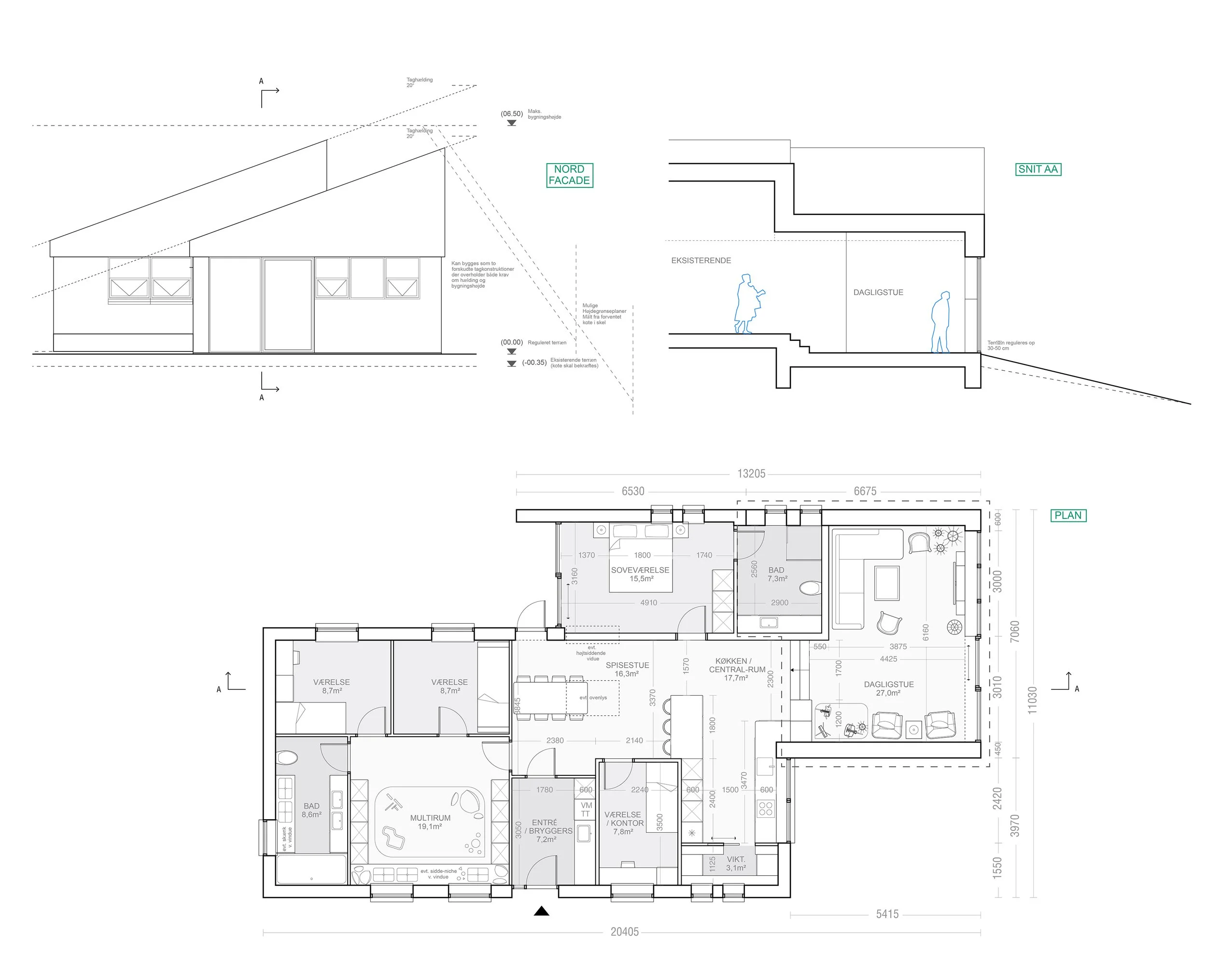
tegninger fra ombygningsprojekt til et enfamiliehus i grenå, Danmark:

 

materiale fra Skitseforslag til et feriehus i Hokkaido, Japan: